Celkem 22 fotografií, zobrazit všechny
Virtuální prohlídka
Prodejce:
realitní makléř: Petra Smetanová
Petra Smetanová
telefon: +420775777471
petra.smetanova@partnerrealit.eu

Máte dotazy? Nezávazně nás kontaktujte:

* Vaše jméno
* Váš email
* Telefon
* Váš vzkaz
 
  Odesláním dotazu zároveň souhlasíte se zpracováním osobních údajů

Prodej novostavby RD 4+kk v Podolí I.

Cena:
7.990.000 ,-
Popis nemovitosti:

Nabízíme k prodeji krásný přízemní bungalov v malebné obci Podolí I, pouhých pár minut od Písku. Tato novostavba rodinného domu o dispozici 4+kk splní představy i náročnějších zájemců hledajících komfortní bydlení v klidném prostředí s vynikající dostupností.

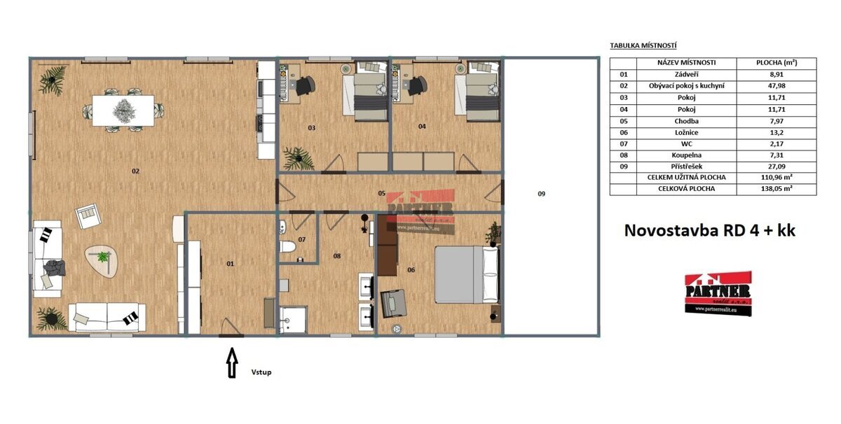
Dům nabízí celkovou plochu 138,08 m². Dispozice je prakticky řešená: prostorné zádveří (8,91 m²), světlý obývací pokoj s kuchyňským koutem (47,98 m²) a přímým vstupem na terasu, tři samostatné pokoje (11,71 m², 11,71 m² a 13,2 m²), praktická chodba (7,97 m²) s druhým vstupem do domu, koupelna se sprchovým koutem (7,31 m²) a samostatná toaleta (2,17 m²). Kvalitní vinylové podlahy podtrhují moderní a příjemnou atmosféru interiéru. Součástí domu je také přístřešek o velikosti 27,09 m² a zahradní domek o výměře 19 m². Celý pozemek o rozloze 1 332 m² je kompletně oplocený a opatřený elektrickou vjezdovou bránou.

Technické řešení domu odpovídá dnešním nárokům na moderní a úsporné bydlení – vytápění a ohřev vody zajišťuje tepelné čerpadlo, připraven je i komín pro instalaci krbových kamen. Dům je napojen na veřejný vodovod a kanalizaci a je zařazen do energetické třídy B – velmi úsporný.

Podolí I je vyhledávaná lokalita pro svou krásnou přírodu, příjemnou komunitu a výbornou dostupnost do Písku (cca 10 minut autem). Jde o ideální místo pro rodiny s dětmi, sportovce i všechny, kdo hledají klidné bydlení blízko města, a přitom s dostatkem soukromí a prostoru.

Mezi hlavní výhody této nemovitosti patří moderní novostavba bez nutnosti dalších investic, velký pozemek s možností realizace zahrady snů, energeticky úsporné řešení a klidné a bezpečné místo pro život.

Neváhejte a přijďte se podívat na svůj nový domov v srdci Jihočeského kraje a domluvte si prohlídku ještě dnes.

Tento dům lze financovat hypotečním úvěrem. Zájemcům v rámci našich služeb nabízíme výhodné financování vytvořené na míru pro tuto nemovitost.

Typ nemovitosti:
Dům, vila
Číslo nemovitosti:
622025
Typ domu:
Rodinný dům
Operace:
Prodej
Adresa:
Podolí I 125
Plocha pozemku:
1332 m2
Plocha zastavěná:
170 m2
Plocha podlahová:
111 m2
Stav objektu:
Novostavba
Konstrukce:
Cihlová
Umístění objektu:
Okraj obce
Komunikace:
Zpevněná
Rok kolaudace:
2025
Vydaný certifikát:
B - Velmi úsporná
Typ certifikátu:
vyhláška č. 264/2020 Sb
Je zobrazena tato GPS souřadnice:
49° 21' 36.860"N, 14° 18' 24.481"E